Garis strip titik strip mempunyai ketebalan ¾ garis gambar seperti dibawah ini memiliki fungsi untuk menyatakan …
Garis sumbu, menyatakan tempat irisan, batas potongan.
Bangunan yang akan di bongkar
Garis batas tidak tampak, batas tepi
Garis ukuran, garis bantu, garis proyeksi, garis arsir, garis ulir.
Garis yang terlihat pda obyek
Penulisan angka-angka ukur yang tidak horizontal maupun vertikal, harus…
Ditulis sesuai dengan garis ukurnya
Diletakkan didaerah yang diarsir
Ditulis didalam gambar
Diletakkan disudut gambar
Ditulis sekecil mungkin
Gambar dibawah ini menunjukkan symbol…
Trasram
Batu kali
Tembok
Batu alam
Beton
Pada adukan beton ada istilah Workability artinya mudah dikerjakan ini tergantung banyak sedikitnya bahan yang digunakan yaitu
Pasir
Kerikil
Air
Semen Portland
Bahan tambah mempercepat pengerasan
Gambar dibawah ini adalah sambungan….
Bibir lurus
Bibir lurus berkait
Bibir miring
Bibir miring berkait
Takikan lurus
Di ketahui hasil bidikan pesawat waterpas terhadap rambu ukur ba = 1.250, bt = 1.050, bb= 0.850 dan tinggi pengamat 1.400, maka beda tinggi titik pengamat ke rambu ukur adalah…
0,35 m
3,5 m
35 m
350 m
0,035 m
Safety shoes digunakan untuk melindungi…
Siku
Mata
Hidung
Mulut
Kaki
Alat yang digunakan untuk mengangkat barang ke tempat yang lebih tinggi adalah…
Katrol
Forklif
Gerobak dorong
Bor tangan
Molen
Berikut ini merupakan perbandingan ukuran yang digunakan dalam menentukan kesikuan suatu sudut bidang dalam pemasangan bowplang adalah…
3 m : 4 m : 6 m
60 cm : 80 cm : 100 cm
30 m: 40 m : 60 m
5 cm: 6 cm: 10 cm
60 mm : 80 mm : 100 mm
12 %
10 %
28 %
44 %
35 %
Lapisan ikatan bata sebagaimana gambar dibawah ini adalah…
Pasangan tembok 1 bata ikatan silang
Pasangan tembok 1 bata ikatan vlam
Pasangan tembok 1 bata ikatan berdiri
Pasangan tembok 1 bata ikatan tegak
Pasangan tembok 1 bata ikatan double
Berdasarkan tabel analisa, 1 m2 plesteran dengan tebal 15 mm, campuran 1 PC: 3 Ps membutuhkan PC=4,5 kg, pasir 0,0195 m3. Bila panjang dinding tembok 42 m dan tinggi 3 m diplester luar dan dalam, maka kebutuhan PC dan pasir adalah…
PC = 382,725 kg, pasir = 1, 658 m3
PC = 567 kg, pasir = 2,457 m3
PC = 813, kg, pasir = 3,914 m3
PC = 1134 kg, pasir = 4,914 m3
PC = 1314 kg, pasir = 6,914 m3
Pada denah rumah seperti di atas akan dipasang lantai keramik 20x20 cm. Kebutuhan keramiknya sejumlah…
2.400 buah
2.000 buah
1.600 buah
1.200 buah
600 buah
Suatu pondasi berbentuk trapesium sisi atas 40 cm sisi bawah 80 cm tinggi pondasi 70 cm maka volume pondasi tersebut jika panjang pondasi 10 m….
0,042 m3
0,42 m3
4,2 m3
42m3
420 m3
Pada gambar diatas, reaksi di titik A sebesar ….
2,09 t
2,06 t
4,09 t
3,09 t
3,06 t
Pada gambar diatas, reaksi di titik B sebesar ….
2,89 t
2,91 t
4,09 t
3,90 t
3,06 t
Jumlah reaksi di titik A dan B sebesar ….
7 t
6 t
9 t
5 t
8 t
Pada gambar disamping, diagram bidang momen berada dibawah garis normal. Maka tanda yang seharusnya dipakai adalah ...
Positif
Lebih besar
Negatif
Lebih kecil
Sama dengan
Hitunglah reaksi di titik A (Ra) yang ditimbulkan dari beban dan konstruksi diatas!
3,09 ton
5,09 ton
7,09 ton
4,09 ton
6,09 ton
Manfaat pemasangan papan bowplank yang dilakukan sebelum pekerjaan pondasi adalah sebagai berikut, kecuali…
Menentukan as bangunan
Menentukan patukan lebar atas pasangan pondasi
Menentukan tinggi pasangan tiang bangunan
Menentukan tinggi pasangan pondasi
Menentukan ukuran ruangan bangunan
Setelah pekerjaan memindahkan sudut-sudut bangunan dari gambar ke lapangan, maka langkah selanjutnya adalah menentukan tinggi duga lantai. Berikut ini yang tidak termasuk dalam urutan pekerjaan menentukan tinggi duga lantai adalah ....
Menyiapkan patok-patok kayu atau bambu dengan panjang sesuai kebutuhan.
Menyiapkan papan seadanya.
Menyiapkan alat ukur tinggi, seperti : selang, waterpass atau pesawat penyipat datar.
Pematokan pada sekitar titik-titik sudut bangunan untuk arah membujur dan melintang.
Menentukan ketinggian dan kedalaman : galian pondasi fiitplat, balok sloof, dan tinggi duga lantai (+ 0.00)
Konstruksi beton yang berfungsi sebagai tiang pada bangunan gedung disebut…
kolom
latei
ring balok
sloof
konsol
Kerikil untuk campuran beton yang baik mempunyai bentuk dan permukaan ...
Lonjong
Pipih
Bulat
Tidak beraturan
Tidak beraturan dan sisinya tajam
Bila ukuran penampang balok sloof 15 x 20 cm. Panjang balok sloof adalah 10m. Volume beton untuk balok sloof adalah ...
0,2 M³
0,3 M³
0,4 M³
0,5 M³
0,6 M³
Di ketahui 1 m3 beton, diperlukan 7,200 zak semen, 0,54 m3 pasir, dan 0,82 m3 kerikil. Suatu pekerjaan pengecoran dengan volume pekerjaan 95 m3. Maka jumlah bahan yang di butuhkan…
Pada suatu gambar rencana bangunan tertulis ukuran gambar detail sebuah penampang kolom ukuran 20 X 40 cm dengan skala gambar 1 : 10. Berapakah ukuran setelah di skala pada gambar tersebut?
20 mm X 40 mm
40 mm X 80 mm
40 mm X 800 mm
200 mm X 400 mm
400 mm X 800 mm
Sekumpulan butir- butir batu pecah, kerikil, pasir, atau mineral lainnya baik berupa hasil alam maupun buatan
Agregrat
Material
Fragmen
Mineral
Partikel
Untuk penggunaan dan pemakaian kayu sebagai bahan bangunan, maka pedoman memilih jenis kayu yang baik kecuali, diantaranya :
Berdasarkan sifat-sifat jenis kayu
Berdasarkan keadaan permukaan kayu
Berdasarkan penampang atau stuktur kayu
Berdasarkan kelas pemakaian kayu
Berdasarkan keawetan dan kekuatan kayu
Dibawah ini yang bukan pernyataan tentang batu bata adalah :
suatu unsur bangunan yang diperuntukkan pembuatan konstruksi bangunan
secara umum batu bata digolongkan dalam 2 jenis: batu bata tanah liat dan batu bata tanah kapur
dibakar dengan suhu yang cukup tinggi
dibuat dari tanah atau campuran bahan-bahan lain
mudah hancur bila direndam dalam air
Sudah selayaknya bagi pekerja yang melaksanakan kegiatannya pada ketinggian tertentu atau pada posisi yang membahayakan wajib mengenakan tali pengaman atau safety belt.
Peralatan listrik berfungsi untuk menghaluskan permukaan lantai beton yang cukup luas sehingga padat dan halus dinamakan……
power trowel
concrete vibrator
circular saw
picks and breakers
router
Dibawah ini merupakan pernyataan fungsi plesteran dinding adalah … 1) Sebagai pelindung terhadap cuaca 2) Untuk meratakan permukaan pasangan bata 3) Untuk menambah keindahan 4) Menghaluskan tembok
1, 2 dan 3
1, 3 dan 4
1, 4 dan 2
2, 3 dan 4
1, 2 dan 4
Sebuah rumah ukurannya 12m x 6 m jika kita menggunakan genteng press biasa 1m2 yang berisi 25 buah maka kebutuhan genteng adalah …
3500 buah
3550 buah
3600 buah
3650 buah
3700 buah
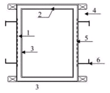
Gambar dibawah ini yang menunjukkan alur kapur nomer…
1
2
3
4
5
Tempat perletakan/melekatnya daun pintu atau daun jendela adalah…
ambang/dorpel
sponneng
telinga
angkur
alur kapur
Ukuran yang digunakan untuk pembuatan sudut siku ini dapat bervariasi sesuai perbandingan 3 : 4 : 5 contohnya adalah …
30cm : 40cm : 50cm
40cm : 50cm : 60cm
60cm : 70cm : 110cm
60cm : 80cm : 100cm
65cm : 85cm : 100cm
Pada pemasangan tiang acuan (perancah) terutama pada tanah yang lunak atau labil maka untuk menghindari penurunan posisi tiang acuan maka bagian bawah harus ...
Diberi baji-baji yang banyak
Diberi batu kerikil yang banyak
Diberi papan landasan yang kuat
Ditambahkan skur dihubungkan dengan tanah
Dicor beton
Rp. 1.500.000
Rp. 1.550.000
Rp. 1.650.000
Rp. 1.700.000
Rp. 1.750.000
Indek keramik 30 cm x 30 cm adalah 11,87 dan 1 dos berisi 11biji, apabila luas lantai yang akan dipasang keramik 100 m2 maka dibutuhkan…
105 Dos
106 Dos
107 Dos
108 Dos
109 Dos
Pemasangan lantai keramik harus memperhatikan segi keindahan ruangan tersebut maka untuk tercapainya hal tersebut diatas dibawah ini pertimbangan-pertimbangan kecuali: