Elemen yang panjang dan langsung dengan potongan melintangnya lebih kecil dibandingkan ukuran panjangnya disebut elemen ?
Permukaan
Datar
Horizontal
Garis
Melintang
Suatu benda terletak pada bidang datar yang kasar dengan koef. Gesek F : 0,4 . berat benda a : 2000 kg , gaya P bekerja pada benda tersebut dengan horizontal .
800 kg
100 kg
500 kg .
400 kg
200 kg
Dua buah gaya masing-masing F1 : 12 N kekanan dan F2 : 8 N kekiri . tenttukan besar dan arah gaya resultan tersebut ! .
1 N
3N
5 N
2 N
4N
Hitunglah beban yang bekerja pada balok beton bertulang ukuran 30 cm × 60 cm yang ditengah tengahnya terdapat tembok pasangan setengah batu lebar 15 cm yang dipasang melintang dengan ukuran tinggi 3 m, panjang 4 m adalah ....
30,6 KN
2,8 KN
2,34 KN
1,7 KN
3,5 KN
-200 kg
-300 kg
-400 kg
-500 kg
-600 kg
ketahanan kayu terhadap serangan dari unsur-unsur perusak kayu dari luar seperti jamur, rayap, bubuk dll adalah pengertian dari
berat jenis
keawetan
warna
teksture
arah serat
jenis beton yang umum digunakan pada pembuatan jalan adlah
beton siklop
beton bertulang
beton non pasir
beton ringan
beton mortal
Genteng keramik dilarutkan dengan pembakaran suhu maksimal
2000°
1000°
1200°
500 °
2500°
beton sangat lemah terhadap gaya?.
Tekan
Putar
Tarik
Dorong
Balik
Sifat aktif dari semen Portland dengan air adalah
Kasar dan lembek
Memuai
Melepas dan mengikat
Tidak bereaksi
Mengikat dan mengeras
Lubang dan pen
Alur dan lidah
Bibir miring
Bibir lurus
Ekor burung
Alat-alat plambing yang merupakan dari system pembuangan dari instalasi dapat berupa, kecuali
Saklar
Kran
Wastafel
Slower
Kloset
Alat pelindung diri yang paling tepat dikenakan pekerja pada saat memasang kuda-kuda rumah dibawah ini adalah...
Sarung tangan, tutup telinga dan kacamata
Sabuk pengaman, tutup telinga dan kaca mata
Sabuk pengaman, sepatu kerja, sarung tangan dan helmet
Tutup telinga, sarung tangan, sabuk pengaman dan kaca mata
Helmet, tutup hidung, sarung tangan dan kaca mata
Alat ukur tanah yang khusus untuk mengukur beda tinggi adalah....
Kompas
Hand lavel
Waterpass
Theodolit
alidade
untuk membawa gelembung udara pada nivo waterpass dari posisi 1 ke posisi 2 pengaturan sekrup yang benar adalah....
Dari hasil pengukuran didapat bacaan seperti pada gambar dibawah ini, berapa jaraknya pesawat dengan bak ukur....
10 m
15 m
20 m
25 m
30 m
Data hasil pengukuran dilapangan seperti pada gambar dibawah ini. Berapakah beda tinggi antara titik A dan titik 2....
0,100 m
0,200 m
0,300 m
0,400 m
0,500 m
Sambungan pada titik buhul I pada gambar bagan rangka kuda-kuda dibawah ini adalah...
Sambungan bibir miring
Sambungan bibir miring berkait
Sambungan bibir miring bekait dengan balok pengunci
Sambungan parohan dengan balok pengunci
Sambungan takikan dengan balok pengunci
Mesin router atau trimer pada pekerjaan kayu digunakan untuk membuat....
Mengaluskan dan menyikukan balok kayu yang panjang
Memingul sisi kayu, memprofil sisi kayu, alur bidang kayu
Lubang bulatan dan persegi pada permukaan kayu
Sambungan papan arah melebar
Potongan serta irisan kayu
Untuk membuat pen (purus) dengan mesin gergaji bundar berlengan, salah satu cara/langkah kerja menyetel gergajinya adalah...
Bersihkan tempat kerja dari benda yang tidak digunakan
Naikkan daun gergaji sampai gigi yang terbawah setinggi sisi tebal pen bagian atas
Kencangkan baut pengunci putaran gergaji
Siapkan kayu pekerjaan ditempat yang mudah dijangkau
Bekerjalah dengan penuh konsentrasi
Pada konstruksi kusen jendela denganbentuk gambar kusen seperti dibawah ini, bagian komponen yang ditunjukan angka 1 adalah....
Ambang atas
Sponeng
Ambang bawah
Alur kapur
Ambang tengah
Hubungan antara ambang tegak (tiang kusen) dengan ambang atas pada kusen pintu pada suatu bangunan gedung adalah...
Takikan separo tebal kayu
Ekor burung
Bibir lurus berkait
Pen dan lubang tidak tembus
Pen dan lubang tembus
Persyaratan kerja konstruksi kayu adalah...
Ada gambar kerja, bahan yang dipakai dan alat yang digunakan
Ada gambar kerja, alat yang digunakan dan pelindung kerja
Ada gambar kerja, bahan yang dipakai, dan pelindung kerja
bahan yang dipakai, alat yang digunakan dan pelindung kerja
Ada gambar kerja, bahan yang dipakai, alat yang digunakan dan pelindung kerja
Gambar pra rencana sekurang-kurangnya terdiri dari
Gambar denah
Gambar denah dan gambar tampak depan
Gambar denah , gambar tampak depan, dan gambar tampak samping
Gambar denah , gambar tampak depan, dan gambar situasi
Gambar denah , , gambar tampak samping dan gambar situasi
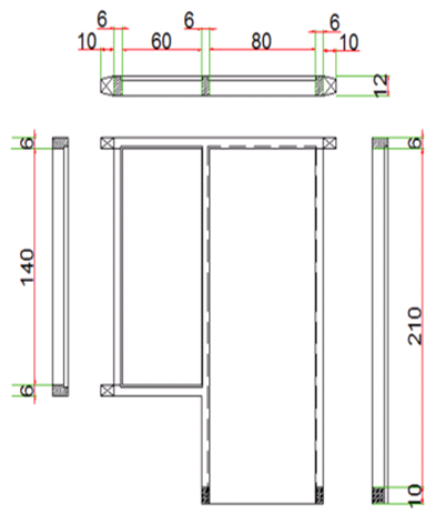
Buatkanlah daftar kebutuhan bahan pada gambar dibawa ini
Hitunglah kebutuhan bahan seperti pada gambar diatas
0,0417 m3
0,0498 m3
0,0545 m3
0,0587 m3
0,0691 m3
Daftar analisis pekerjaan untuk 1 m3 kayu jati kampung untuk pembuatan dan pemasangan kusen pintu dan jendela adalah seperti dalam daftar dibawah ini (SNI 2008). Bila kita akan membuat sebuah pintu dengan membutuhkan kayu hingga volume 0,055 m3, berapakah biayanya?
RP 305.400
Rp 434.643
Rp 456.510
Rp 486.561
Rp 568.561
Sebutkanlah prosedur atau langkah-langkah kerja yang benar dalam pembuatan kusen jendela. 1. Siapkan bahan dan alat yang digunakan 2. Lukislah benda kerja sesuai gambar kerja 3. Buatlah sponingnya 4. Bersikan lubang dan pennya 5. Potong baloksesuai gambar kerja 6. Ketam dua sisi balok yang saling tegak lurus dengan menggunakan mesin ketam perata 7. Ketam dengan mesin ketam penebal dua sisi lainya 8. Bualah kuping/telinganya 9. Berilah penyiku agar tidak mudah berubah 10. Buatlah lubangnya 11. Periksa semua pekerjaan, kalau sudah beres letakan posisi berdiri 12. Bautlah pen menggunakan gergaji potong 13. Buatlah versteknya 14. Setel kusen yang telah dibuat bagian-bagiannya 15. Borlah pada setiap sambungan kemudian diberi dowel
1,2,3,4,5,6,7,8,9,10,11,12,13,14 dan 15
1,5,4,6,8,9,3,2,13,7,10,12,14,11, dan 15
1,5,6,7,2,12,13,10,3,8,4,14,15,9, dan11
1,3,5,7,8,10,12,11,15,2,4,6,13, 14, dan 9
1,2,4,6,3,5,7,8,10,12,14,9,11,13, dan 15
Sebutkanlah prosedur atau langkah-langkah kerja yang benar dalam pembuatan kusen pintu 1. Siapkan bahan dan alat yang dgunakan 2. Ketam balok pada 3 bian sisi balok 3. Lukis sambungan sudut kusen 4. Lukis kemiringan rostel pada tiang tegak 5. Lukis lubang pen 6. Periksa keseluruhan jika sudah beres letakan dalam posisi berdiri 7. Buatlah sponing pintu 8. Buat pen dan lubang sesuai gambar kerja 9. Potong kayu sesuai daftar potong 10. Lukis pen dengan lebar 1/3 lebar balok 11. Lukis sponing pintu 12. Setel semua sambungan 13. Borlah setiap sambungan dan dipasang dowel 14. Lukis verstek 15. Buatlah versteknya 16. Setel sambungan sudut pintu hingga tepat, siku, rata dan rapat 17. Ratakanlah sambungan sudut kusen 18. Buatlah telinga kusen 19. Berilah penyiku antara tiang dan ambang dan tiang dengan tiang
1,4,3,5,7,6,8,11,13,9,10,12,15,14,17,16,19,2 dan 18
1,9,2,3,10,4,5,11,14,8,15,16,7,17,18,12,13,19, dan 6
1,3,5,7,4,6,8,11,2,10,9,13,12,16,14,15,18,19, dan 17
1,9,2,3,10,4,5,11,15,14,8,16,17,7,18,12,19,13, dan 6
1,9,3,2,4,10,14,11,15,8,16,17,7,18,13,12,6, dan 19
Sebutkanlah prosedur atau langkah-langkah kerja yang benar dalam pemasangan kusen pintu pada bangunan 1. Siapkan alat dan bahan secukupnya1 2. Pasang angker pada kusen secukupnya3 3. Setel kedudukan kusen sehingga berdiri tegak dengan menggunakan unting-unting5 4. Rentangkan benang berjarak separuh dari tebal kusen terhadap as bowplank2 5. Dirikan kusen dan tentukan tinggi kedudukan kusen yaitu 2 m dari tinggi bowplank4 6. Pasang patok untuk diikat dengan skur7 7. Pasang skur sehingga kedudukannya stabil dan kokoh6 8. Cek kembali kedudukan kusen, apakah sudah sesuai8 9. Bersikan tempat sekelilingnya9
1,3,5,2,4,7,6,8, dan 9
1,5,3,4,2,6,7,9, dan 8
1,2,5,3,7,6,4,8, dan 9
1,4,2,5,3,7,6,8, dan 9
1,3,2,4,5,6,8,7, dan 9
Sebutkanlah prosedur atau langkah-langkah kerja yang benar dalam pemasangan kusen jendela pada bangunan 1. Siapkan alat dan bahan secukunya 2. Pasang bata setengah batu setinggi dasar kusen jendela 3. Rentangkan benang setinggi 2 m dari bouwplank 4. Pasang kusen sampai betul-betul tegak dengan unting-unting 5. Rentangkan benang berjarak separuh dari tebal kusen terhadap as bowplank 6. Pasang kusen jendela setinggi benang tersebut 7. Pasang kusen setinggi benang tersebut 8. Cek kembali kedudukan kusen sampai terpasang pada keadaan yang benar 9. Pasang skur agar kedudukan stabil dan kuat 10. Bersikan tempat sekelilingnya
1,5,2,6,3,7,4,9,8, dan 10
1,6,5,2,4,7,3,10,8, dan 9
1,2,5,3,6,4,7,8,9, dan 10
1,8,9,4,3,7,6,5,2,dan 10
1,3,5,2,7,4,9,8, 6, dan 10
Sebutkanlah prosedur atau langkah-langkah kerja yang benar dalam pemasangan daun pintu pada kusen kayu. 1. Ukurlah lebar dan tinggi kusen pintu1 2. Ketam dan potong daun intu bila terlalu lebar dan terlalu tinggi3 3. Lepas daun pintu, pasang engsel daun pintu pada tiang daun pintu dengan jarak dengan sisi bagian bawah 30 cm dan dari sisi bagian atas 25 cm 5 4. Lepas sebelah bagian engsel pada daun pintu dengan cara melepas pennya kemudian pasang pada tiang kusen7 5. Pasang kembali daun pintu pada kusennya dengan memasangkan engselnya, kemudian masukan pennya sampai pas8 6. Bila masih dianggap kurang pas, lepaskan daun pintu dengan cara melepas pen10 7. Ukurlah lebar dan tinggi daun pintu2 8. Pasang daun pintu pada kusennya, setel sampai masuk dengan toleransi kelonggaran 3-5 mm, baik kearah lebar maupun arah tinggi4 9. Pasang lagi daun pintu pada kusennya, setel kedudukannya dan beri tanda pada tiang kusen tempat engsel sesuai dengan engsel yang ada di daun pintu6 10. Cobalah daun pintu dengan cara membuka dan menutup9 11. Setel lagi sampai daun pintu dapat membuka dan menutup dengan baik, rata dan lurus dengan kusen11
1,2,7,3,8,4,9,10,5,6, dan 11
1,7,8,2,3,9,4,10,5,6, dan 11
1,8,7,2,3,9,4,6,5,10, dan 11
1,2,3,7,8,9,4,6,10,5, dan 11
1,7,2,8,3,9,4,5,10,6, dan 11
Sebutkanlah prosedur atau langkah-langkah kerja yang benar dalam pemasangan atau perakitan kuda-kuda kayu. 1. Siapkan alat dan bahan yang digunakan1 2. Pasangkan kaki kuda-kuda dan balok tarik3 3. Pasang balok penyokong pada tiang dan kaki kuda-kuda5 4. Hubungkan kedua kaki kuda-kuda dengan tiang kuda-kuda6 5. Siapkan balok tarik yang telah disambung dan dipasang balok kunci2 6. Pasangkan tiang kuda-kuda dan balok tarik4 7. Perkuat setiap simpul dengan pasak7
1,5,2,6,3,4, dan 7
1,2,4,3,5,7, dan 6
1,6,2,5,3,6, dan 7
1,2,3,5,6,4, dan 7
1,5,3,2,4,7, dan 7
Salah satu prosedur teknik finishing kayu menggunakan bahan cat sintetik alkid enamel adalah sebagai berikut kecuali............
Pelapisan dasar permukaan dengan meni kayu, pengisian pori-pori kayu dengan plamir berpelarut afdunner, pelapisan antar media dengan cat dasar alkid enamel dan pelapisan akhir dengan cat alkid sintetik enamel.
Pelapisan dasar permukaan dengan meni kayu, pengisian pori-pori kayu dengan plamir berpelarut afdunner, pelapisan dasar permukaan dengan meni kayu, pelapisan antar media dengan cat dasar alkid enamel dan pelapisan akhir dengan cat alkid sintetik enamel.
Pengisian pori-pori kayu dengan plamir berpelarut afdunner, Pelapisan dasar permukaan dengan meni kayu, pelapisan akhir dengan cat alkid sintetik enameldan pelapisan antar media dengan cat dasar alkid enamel
pengisian pori-pori kayu dengan plamir berpelarut afdunner, pelapisan antar media dengan cat dasar alkid enamel, pelapisan dasar permukaan dengan meni kayu, dan pelapisan akhir dengan cat alkid sintetik enamel.
Pelapisan dasar permukaan dengan meni kayu, , pelapisan antar media dengan cat dasar alkid enamel, pelapisan akhir dengan cat alkid sintetik enamel, dan pengisian pori-pori kayu dengan plamir berpelarut afdunner
Sebutkan jenis-jenis finishing kayu menggunakan bahan melamin adalah........
Melamin warna transparan, melamin enamel, nuansa granit dan nuansa bebatuan marmer.
Melamin natural transparan, melamin warna transparan, melamin enamel, nuansa granit dan nuansa bebatuan marmer.
Melamin natural transparan, melamin warna transparan, melamin enamel, dan nuansa bebatuan marmer.
Melamin natural transparan, melamin warna transparan, melamin enamel, dannuansa granit.
Sebukan langkah-langkah kerja melamin natural transparan adalah sebagai berikut....
Pengisian pori kayu dengan wood filer solvent base maupun water base, pelapisan permukaan dengan sending sealer NC, pelapisan akhir dengan nitroselulose clear (penampilan gloos, semi, maupun dof)
Pengisian pori kayu dengan wood filer solvent base maupun water base, pewarnaan permukaan dengan wood stain langsung, pelapisan permukaan dengan sending sealer NC, pelapisan akhir dengan nitroselulose clear (penampilan gloos, semi, maupun dof)
Pengisian pori kayu dengan wood filer solvent base maupun water base, pewarnaan permukaan dengan wood stain langsung, pelapisan akhir dengan nitroselulose clear (penampilan gloos, semi, maupun dof)
Pengisian pori kayu dengan wood filer solvent base maupun water base, pewanaan cara langsungdengan wood stain solvent langsung diusapkan, pelapisan antar media dengan melamin sending sealer dan pelapisan akhir permukaan dengan melamin clear, penampilan kilap, semi, mat
Pengisian pori kayu dengan wood filer solvent base maupun water base, pewanaan cara langsungdengan wood stain solvent langsung diusapkan, dan pelapisan akhir permukaan dengan melamin clear, penampilan kilap, semi, mat
Salah satu prosedur teknik finishing kayu menggunakan bahan vernis adalah sebagai berikut.
Menyiapkan permukaan kayu dengan cara diamplas dengan amplas nomor 220 - 240, pengisian pori-pori kayu dengan bubur filler berpelarut air, mengamplas pelapisan dasar yang telah kering denganamplas nomor 320, dan pelapisan vernis terakhir (top coat) dengan vernis encer yang mempuyai kekentalan 12,5 detik dengan minyak cat atau terpentin.
Menyiapkan permukaan kayu dengan cara diamplas dengan amplas nomor 220 - 240, pengisian pori-pori kayu dengan bubur filler berpelarut air, penguasan dasar dengan vernis kopal, mengamplas pelapisan dasar yang telah kering denganamplas nomor 320, dan pelapisan vernis terakhir (top coat) dengan vernis encer yang mempuyai kekentalan 12,5 detik dengan minyak cat atau terpentin.
Menyiapkan permukaan kayu dengan cara diamplas dengan amplas nomor 80 – 180, pengisian pori-pori kayu dengan bubur filler berpelarut air, penguasan dasar dengan vernis kopal, dan pelapisan vernis terakhir (top coat) dengan vernis encer yang mempuyai kekentalan 12,5 detik dengan minyak cat atau terpentin.
Menyiapkan permukaan kayu dengan cara diamplas dengan amplas nomor 80 – 180, pengisian pori-pori kayu dengan bubur filler berpelarut air, mengamplas pelapisan dasar yang telah kering denganamplas nomor 320, dan pelapisan vernis terakhir (top coat) dengan vernis encer yang mempuyai kekentalan 12,5 detik dengan minyak cat atau terpentin.
Menyiapkan permukaan kayu dengan cara diamplas dengan amplas nomor 80 – 180, pengisian pori-pori kayu dengan bubur filler berpelarut air, penguasan dasar dengan vernis kopal, mengamplas pelapisan dasar yang telah kering denganamplas nomor 320, dan pelapisan vernis terakhir (top coat) dengan vernis encer yang mempuyai kekentalan 12,5 detik dengan minyak cat atau terpentin.
Prosedur teknik finishing kayu menggunakan bahan cat duco adalah sebagai berikut.
Menyiapkan pemukaan dengan mengamplas dengan amplas nomor 220 – 240, pemlamiran permukaan dengan bahan dempul abu-abu, pelapisan cat antar media dengan nitroselulose surface, peratan dengan warna penuntun dan diamplas dengan amplasnomor 240 – 320, dan penyemprotan akhir.
Menyiapkan pemukaan dengan mengamplas dengan amplas nomor 80 – 180, pemlamiran permukaan dengan bahan dempul abu-abu, pelapisan cat antar media dengan nitroselulose surface, dan peratan dengan warna penuntun dan diamplas dengan amplasnomor 240 – 320
Menyiapkan pemukaan dengan mengamplas dengan amplas nomor 220 – 240, pemlamiran permukaan dengan bahan dempul abu-abu, pelapisan cat antar media dengan nitroselulose surface, peratan dengan warna penuntun dan diamplas dengan amplasnomor 320 – 360, dan penyemprotan akhir.
Menyiapkan pemukaan dengan mengamplas dengan amplas nomor 80 – 180, pemlamiran permukaan dengan bahan dempul abu-abu, pelapisan cat antar media dengan nitroselulose surface, peratan dengan warna penuntun dan diamplas dengan amplasnomor 240 – 320, dan penyemprotan akhir.
Menyiapkan pemukaan dengan mengamplas dengan amplas nomor 80 – 180, pemlamiran permukaan dengan bahan dempul abu-abu, peratan dengan warna penuntun dan diamplas dengan amplasnomor 240 – 320, dan penyemprotan akhir.
Ketentuan-ketentuan teknis pemasangan bekisting kayu untuk kolom adalah sebagai berikut..........
Ukuran sesuai dengan perhitungan dan bentuk kolom, ketegakan kolom sangat diperlukan, mudah dalam mengerjakan dan pembongkarannya, dan tidak bocor padawaktu pelaksanan pengecoran campuran beton
Ukuran sesuai dengan perhitungan dan bentuk kolom, balok yang digunakan harus kuat dan kokoh, ketegakan kolom sangat diperlukan, mudah dalam mengerjakan dan pembongkarannya, dan tidak bocor padawaktu pelaksanan pengecoran campuran beton
Ukuran sesuai dengan perhitungan dan bentuk kolom, tebal papan minimal 3 cm, ketegakan kolom sangat diperlukan, mudah dalam mengerjakan dan pembongkarannya, dan tidak bocor padawaktu pelaksanan pengecoran campuran beton
Ukuran tidak perlu sesuai dengan perhitungan dan bentuk kolom, ketegakan kolom sangat diperlukan, mudah dalam mengerjakan dan pembongkarannya, dan tidak bocor padawaktu pelaksanan pengecoran campuran beton
Ukuran sesuai dengan perhitungan dan bentuk kolom, ketegakan kolom sangat diperlukan, mudah dalam mengerjakan dan pembongkarannya, jarak antara kolom harus sama panjang, dan tidak bocor padawaktu pelaksanan pengecoran campuran beton
Pada gambar kuda-kuda dibawah ini berapakah panjang bentangan dan jenis bahan apakah untuk membuat kuda-kuda tersebut
Bentangan 3 – 4 m bahan dari kayu dan beton bertulang
Bentangan 4 – 8 m bahan dari kayu dan beton bertulang
Bentangan 9 – 12 m bahan dari baja dan beton bertulang