Diketahui seperti gambar diatas; Ditanya : berapa besarnya momen tumpuan C bila P = 8 kg
13,71 kgm
14, 71 kgm.
15,71 kgm
16,71 kgm.
18,71 kgm.
Besarnya reaksi tumpuan pada titik A pada gambar diatas, jika P1= 100 kg, P2= 250 kg, dan P3 =200 kg
210, 67 kg
216,67 kg
220,67 kg
221,67 kg
222,67 kg
Diketahui penampang kayu 4cm x 6 cm , menerima beban tekan 500 kg, panjang kayu 40 cm. Ditanya tegangan tekan =……..?
14, 83 kg/cm2.
17, 83 kg/cm2
20,83 kg/cm2
22,83 kg/cm2
24,83 kg/cm2
Berapakah panjang sambungan bibir lurus tersebut
1,5 – 2 h.
1,5 – 2,25 h.
2 – 2,25 h
2 – 2,5 h
2 – 3 h.
Jika kedalaman tanah keras lebih dari 4 meter, maka pondasi yang cocok diterapkan adalah :
Pondasi sumuran
Pondasi langsung
Pondasi tidak langsung
Pondasi tiang pancang
Pondasi telapak
Alat pelindung tangan dari bakteri dan kuman adalah :
Metal mesh
Leather gloves
Vinyl dan neoprene gloves.
Rubber gloves.
Latex disposable gloves
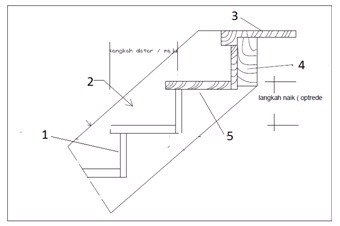
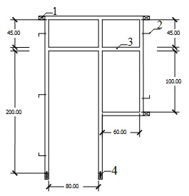
Stopbod ditunjukan pada gambar ….
1
2
3
4
5
Jika ukuran dilapangan 250 m digambar dengan skala 1 : 2000 maka ukuran digambar adalah….
10,5 cm
12,5 cm
15,0 cm
15,5 cm
16,0 cm
Ketam yang digunakan untuk mengetam pada bagian yang melengkung adalah….
Ketam panjang
Ketam pendek
Ketam kasar
Ketam halus
Ketam kauto
Alat untuk menempatan alat sambung kayu pada sambungan sudut, memanjang dan melebar..
Mesin Frais
Mesin Gergaji pita kecil
Mesin Lamelo
Mesin Bor tangan
Mesin palner
Berapaka panjang sambungan pd gambar diatas….
1,5 – 2 h.
1,5 – 2,5 h
2 – 2,5 h
2 – 3 h
2 – 3,5 h
Sambungan kayu yang sering dipakai untuk sambungan knock down /bongkar pasang pada konstruksi perabot adalah jenis sambungan :
Hubungan pen dan lubang diperkuat dengan baut.
Hubungan kayu memanjang diperkuat dengan baut.
Sambungan ekor burung diperkuat dengan baut.
Sambungan coak dan takik diperkuat dengan baut.
Sambungan papan melebar diperkuat dengan baut
Penyetelan mesin ketam perata untuk pengetaman biasa adalah :
Meja belakang diturunkan 2 – 3 mm, meja depan sama tinggi dengan garis perputaran pisau.
Meja belakang dan meja muka diturunkan 2 – 3 mm dari garis perputaran pisau
Meja muka diturunkan 2 – 3 mm, meja belakang sama tinggi dengan garis perputaran pisau.
Meja muka dan meja belakang sama tinggi dengan garis perputaran pisau. Meja muka dan meja belakang sama tinggi dengan garis perputaran pisau. au.
Meja muka diturunkan 2 – 3 mm dari sumbu pisau , meja belakang sama tinggi dengan garis perputran pis
Sambungan kayu yang sering dipakai untuk sambungan knock down /bongkar pasang pada konstruksi perabot adalah jenis sambungan :
Hubungan pen dan lubang diperkuat dengan baut.
Hubungan kayu memanjang diperkuat dengan baut.
Sambungan ekor burung diperkuat dengan baut.
Sambungan coak dan takik diperkuat dengan baut.
Sambungan papan melebar diperkuat dengan baut
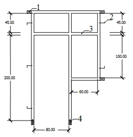
Komponen kusen no. 4
Tiang kusen
kupingan
Duk.
Angker.
Neut.
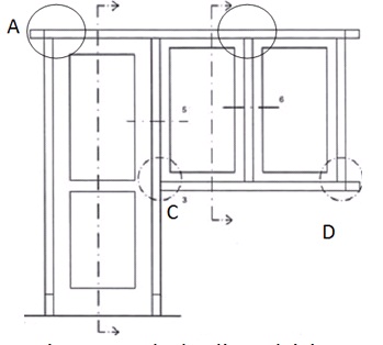
Hubungan pada detail D adalah :
Hubungan pen dan lubang yang diperkuat nagel.
Hubungan ekor burung tertutup diperkuat lem.
Hubungan dengan dowel tersembunyi diperkuat lem.
Hubungan ravil tersembunyi diperkuat dengan paku.
Sambungan kayu menyudut diperkuat nagel
Kayu yang digunakan ukuran 6 cm x 12 cm. Berapakah volume kayu yang dibutuhkan….:
0,010576
0,025056
0,028796
0,030801
0,106461
Sambungan pada detail D adalah….
Sambungan setengah takikan. Diperkuat dengan skrup dan lim kayu.
Sambungan pen dan lubang diperkuat dengan spat pen.
Sambungan pen dan lubang , diberi verstek.
Sambungan pen dan lobang double pen dan spat pen
Sambungan pen dan lubang tanpa spat pen
Komponen kusen no 1 adalah :
Tiang kusen
kupingan
Duk.
Angker.
Neut.
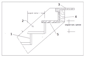
Balok lintang ditunjukkan pada gambar…..:
1
2
3
4
5
Sambungan papan melebar pada gambar diatas adalah….
Sambuangan alur dan lidah lepas
Sambungan alur dan lidah tetap.
Sambungan dengan sponing
Sambungan isian
Sambungan alur lidah dengan sponing
Ruang berukuran 5 x 5 m2 akan dipasang lantai papan kayu. Berapa volume papan yang dibutuhkan jika ukuran papan yang tersedia 3/20 x 4 m.?
0,50 m3
0,65 m3
0,75 m3
0,80 m3
0,95 m3
Motif parket pada gambar diatas adalah…..
Motif sejajar.
Motif mozaik
Motif Inggeris
Motif bersilang
Motif Belanda
Ruang berukuran 5 x 5 m2 akan dipasang lantai parket ukuran 30 cm x 30 cm. Berapa buah parket yang dibutuhkan….
276 buah.
277 buah
278 buah
279 buah
280 buah
Sambungan kayu untuk dinding yang dominan dipakai adalah :
Sambungan alur lidah tetap
Sambungan kayu sponing.
Sambungan kayu pen dan alur.
Sambungan kayu dengan pasak.
Sambungan kayu memanjang
Luas dinding 3,5 m x 8 m akan dipasang dinding dari papan kayu ukuran 2 x 20 x 400 cm. Berapa volume kayu yang dibutuhkan?
0,45 m3
0,56 m3
0,60 m3
0,65 m3
0,70 m3
Dalamnya alur kaca untuk daun jendela adalah :
1cm
1,5cm
2cm
2,5cm
3cm
Kaca yang hanya tembus pandang dari satu arah saja
Kaca bevel
Kaca double glass
Kaca reflective
Kaca laminated
Kaca tempered
Yang disebut balok bordes ditunjukkan gambar no ……
1
2
3
4
5
Fungsi Balustrade pada tangga adalah….
Memperkuat tangga
Agar kaki tidak terperosok
Agar anak tidak jatuh dari tangga
Agar tangga tidak licin
Sebagai pegangan naik-turun tangga
Berdasarkan kelandaian tangga, untuk tangga kategori tangga landai dengan kemiringan... derajat
6 – 20
20 – 24
24 – 45
45 – 75
75 – 90
Suatu ruangan memiliki 2 lantai, ketinggian lantai 1 dan lantai 2 adalah 380 cm. Berapakah jumlah anak tangga jika optrede 19 cm….
19 buah
20 buah
21 buah
22 buah
23 buah
Konstruksi rangka atap system portal sederhana digunakan pada bentang….
Tidak lebih 3 meter
Lebih 3 meter
4 meter samap 12 meter
12 meter lebih
20 meter lebih
Yang termasuk kaca berpola adalah….
Kaca es
Kaca patri
Kaca hias
Kaca gelap/ riben
Kaca painting
Jika ukuran daun jendela adalah : lebar luar 60 cm dan tinggi 100 cm ,maka ukuran kaca yang dipakai adalah :
Kaca tebal 2mm
Kaca tebal 5 mm.
Kaca tebal 0,2 mm.
Kaca tebal 0,3mm.
Kaca tebal 0,3mm.
Sebuah tangga harus diberi bordes jika :
Untuk keindahan tangga.
Sebagai tempat istirahat.
Karena tinggi ruang terbatas.
Karena anak tangga lebih dari 12 buah.
Karena anak tangga lebih dari 20 buah
Untuk memperluas pijakan pada anak tangga maka diberi…
Well.
Wellat.
Stoot boad.
Reling.
Boom
Bentuk railing tangga kayu dibuat:
Oval
Lingkaran.
Segi empat.
Segi banyak.
Sudut kayu siku.
Bentuk kuda-kuda untuk bentang 9-16 meter
Suatu ruang dengan ukuran 5,00 x 6,00 m . dipasang plafon dengan eternity ukuran 1,00 x 1,00. Kayu yang dipakai usuk ukuran 4cm x 6 cmx 400cm . Berapa batang usuk yang diperlukan untuk rangka plafon tersebut.